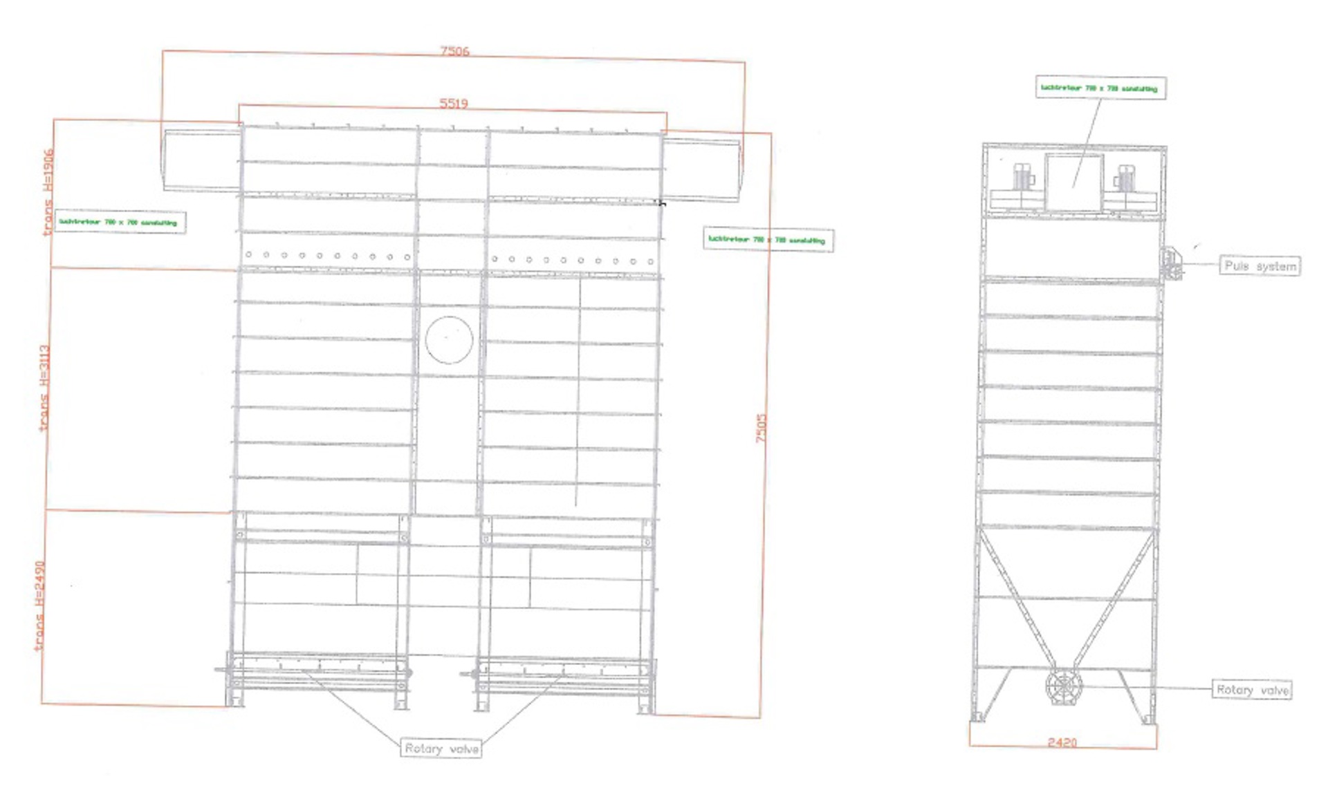
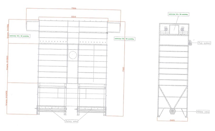
Hevada Afzuigunit DSF300-V6-CV5,5
M002940
Uitvoering
Centrale afzuigunit op onderdruk
- cap.27.000m³/h
(uitbreidbaar tot 36.000m³/h)
- Volgens ATEX 153 / St1
- totale vermogen : 34,10 kW
- 6 ventilatoren in cascade
- filteroppervlakte : 300m²
- persluchtreiniging
- Aanzuigleiding diam. 400mm
- sluisfilter (2x draaisluis)
aansluiting uitgang diam. 200mm
- besturinskast Siemens
- 2 warmelucht recuperatiekanalen 700x700mm
met zomer/winterklep
opgebouwd uit 3 delen
afmetingen (opgesteld) : 7,5 x 2,45 x 7,5m
gewicht: +/- 7000 kg
Gelijkaardige machines in tweedehands
Holztech
Holztech DC 101Afzuigingsunit
M000045
Holztech
Holztech DC 102 Afzuigingsunit
M000061
Felder
/M002940_ap.png?width=740)
.jpg?width=740)

